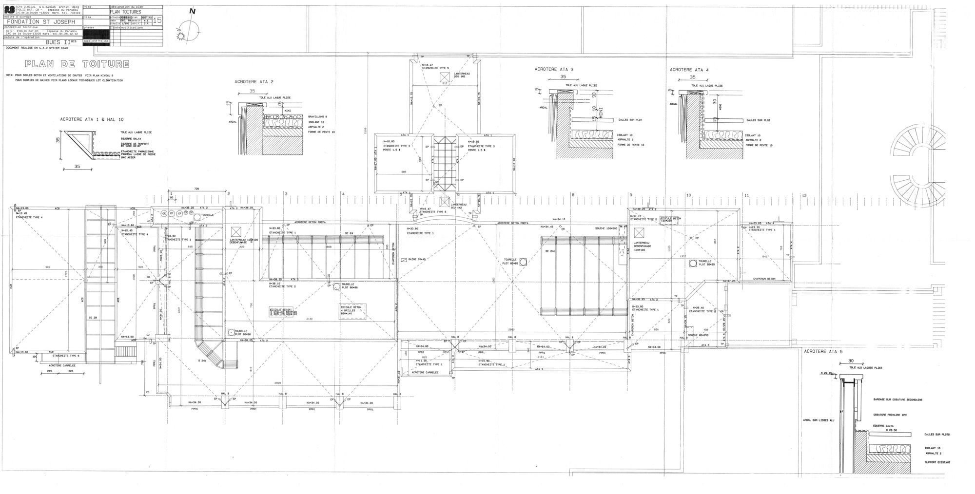
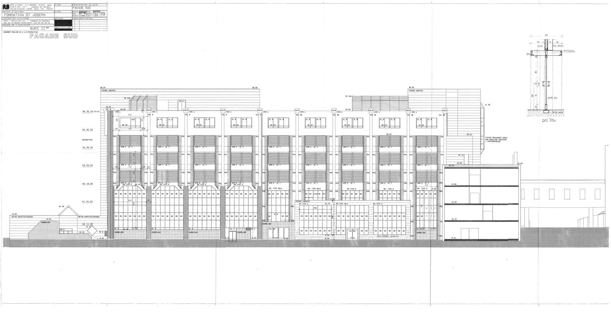
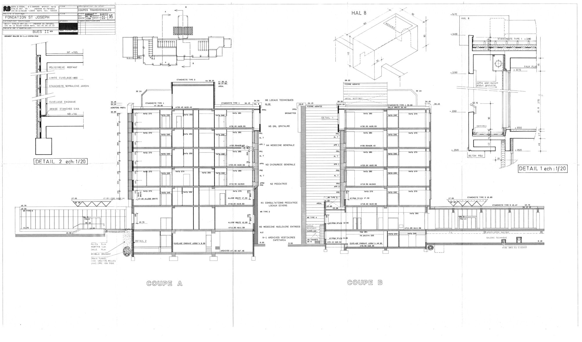
Annexe au CCTP - R&B archi toiture coupes façades R&B coupe longitudinale (2.0 Mo) R&B coupes transversales (1.8 Mo) R&B façade nord (2.2 Mo) R&B façade est et ouest (2.3 Mo) R&B façade sud (2.7 Mo) Toitures (1.5 Mo)