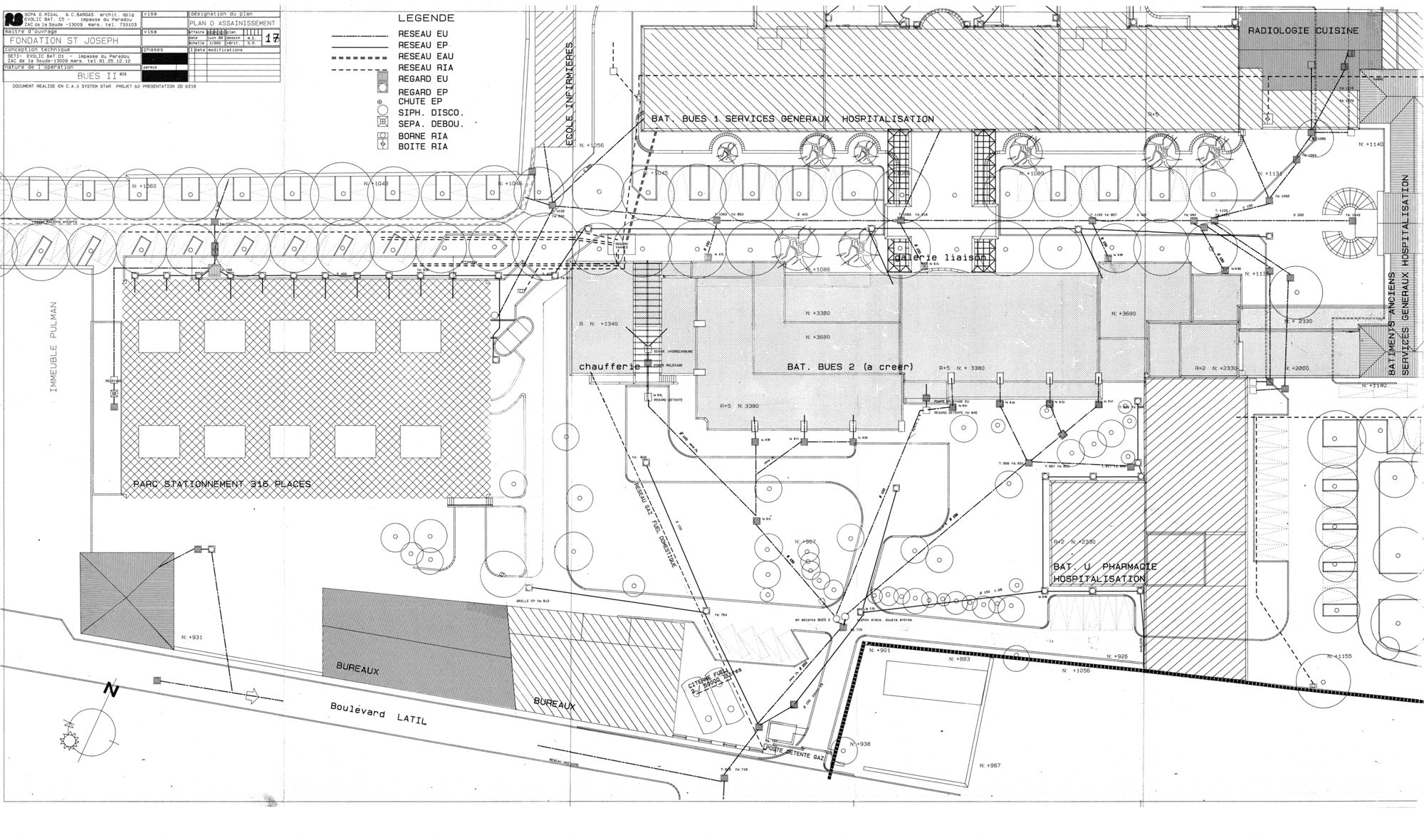
Annexe au CCTP - VRD Assainissement sud (3.4 Mo) Réseaux Sud Fouque 2 (163.2 Ko) Réseaux Sud Fouque (1.8 Mo) Plan de masse (5.1 Mo)